Projekt Beschreibung
Mannheim – Neckarau
Sie haben die Wahl – Kapitalanlage oder Eigennutzung – Gepflegte 2,5-ZKB-DG ETW mit Loggia & Garage

Lage
Der Stadtbezirk Neckarau liegt im Südwesten Mannheims direkt am Rhein. Angrenzende Stadtbezirke sind Lindenhof, Neuhermsheim und Rheinau. Der Stadtteil Neckarau wird im Nordwesten durch die Rheingoldstraße vom Stadtteil Niederfeld, sowie durch die Rottfeldstraße und Voltastraße vom Stadtteil Almenhof abgegrenzt. Im Ortskern befindet sich der August-Bebel-Park. In der Rheinschleife liegt der Waldpark mit seinen Naturschutzgebieten. Südlich des Waldparks befindet sich das beliebte Mannheimer Strandbad „Stollenwörthweiher“. An den Waldpark grenzt das Aufeld mit seinen Kleingärten und Wiesen an. In diesem Bereich haben zahlreiche Vereine ihre Sportanlagen. Das Gartenhallenbad lädt ganzjährig zum Schwimmen und Saunieren ein.
Das Einzelhandelsangebot von Neckarau ist überdurchschnittlich gut zu bewerten. Zudem ist Neckarau für seine zahlreichen Cafés und Restaurants bekannt. Auf dem Markplatz findet jeden Freitag der Wochenmarkt statt.
Familien mit Kindern werden zahlreiche Einrichtungen wie Kindertagesstätten, Kinderhäuser und Kinderkrippen angeboten. Ebenso finden Sie Schulen diverser Zweige, speziellen Fachrichtungen (Kunst, Sport) sowie die Waldorfpädagogik. Die nähere Umgebung ist ausschließlich von Ein- und Mehrfamilienhäusern geprägt.
Neckarau ist an die Stadtbahnlinien 1, 3 und 8 sowie an mehrere Buslinien angeschlossen. Der Haltepunkt Neckarau Bahnhof wird vom Eisenbahnpersonennahverkehr angefahren. Mittelfristig soll er in die S-Bahn-Rhein-Neckar integriert werden. Die vierspurig ausgebaute B 36 stellt die Verbindung in die Innenstadt sowie in der anderen Richtung zu den Autobahnen A 6 und A 656 her.
Objekt
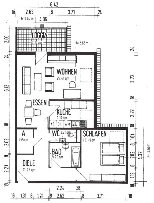
Diese ca. 69 m² große im Dachgeschoss gelegene helle Eigentumswohnung befindet sich in einem soliden und gepflegten Zustand. Das ruhige Doppel-Wohnhaus verfügt über insg. 16 Wohneinheiten aufgeteilt in zwei Hauseingänge. Das Stadthaus wurde durch einen überregional bekannten Bauträger in massiver Bauweise errichtet. Die nähere Wohngegend wurde durch weitere Bestandsimmobilien adäquater Bauarten maßgebend geprägt. Das gesamte Objekt nebst dem Garagenkomplex ist verwaltergeführt. Die beiden Wohnräume verfügen über Dachflächen-Fenster und ermöglichen somit ein helles und angenehmes Wohnambiente. Die zweckmäßige Aufteilung der Wohnung mit einem Schlafraum spricht Paare als auch Einzelpersonen an. Vom ausgedehnten Dielenbereich aus gelangen Sie in alle Räume. Das innenliegende Bad ist mit einer Badewanne, Waschmaschinenanschluss sowie einer Lüftung Berliner Art ausgestattet. Das WC liegt getrennt vom Bad. Haushaltsübliche Utensilien können Sie im wohnungsinternen Abstellraum verwahren. Weiterer Stauraum findet sich im eigenen Kellerraum. Mittelpunkt dieser schönen Wohnung ist der offen gestaltete Wohn-Essbereich mit Zugang zur regengeschützten Loggia in östlicher Ausrichtung. Die Einbauküche mit Hochglanzfronten und Einbaugeräten ist bereits im Kaufpreis inkludiert. Gemeinschaftlich genutzte Räume sind ein Fahrradkeller (außenliegende Fahrradrampe) sowie der Trockenraum. Eine eigene Garage im Hofbereich des Wohnkomplexes rundet dieses Immobilienangebot ab.
In den letzten Jahren sind am Haus selbst, als auch in der Wohnung diverse Renovierungs- und Sanierungsarbeiten durchgeführt worden. In der WEG sind derzeit keine Maßnahmen, welche einer Sonderumlage bedürfen, beschlossen.
Das Objekt wurde vormals eigengenutzt und ist ab sofort verfügbar. Die perfekte Grundlage für Eigennutzer als auch Kapitalanleger.
Es besteht kein Erbbaurecht.
Ausstattung
- Holz-Balkontür mit Zweifach-Verglasung
- Dachflächenfenster mit teilweiser Verdunkelung
- Elektrische Verdunkelung im Schlafraum
- Manueller Rollladen Balkontür
- Innenliegendes Bad mit Badewanne, beige Fliesen ¾ deckenhoch
- Innenliegendes WC mit Stand-WC, helle Fliesen im Nassbereich
- Waschmaschinenanschluss im Bad
- Berliner Abluft in Bad & WC
- Fußbodenbeläge: Granit, Laminat, Fliesen
- Innentüren: Holztüren weiß, teilweise verglast
- Innenwandbeläge: Feinputz, teilweise tapeziert und gestrichen
- Decken: Feinputz, teilweise tapeziert und gestrichen
- Einbauküche mit Einbaugeräten
- Wohnungsinterner Abstellraum
- Kellerraum mit Leuchte
- Loggia in Ausrichtung Osten
- Einzelgarage
- Allgemeiner Trockenraum
- Zugeordneter Fahrrad-Stellplatz
- Sicherheitstechnik: Türsprechanlage, Türspion
Ca. Maße der einzelnen Räume:
Küche 7,12 m²
Wohnen/Essen 25,41 m²
Schlafen 13,49 m²
Diele 11,25 m²
Bad 5,29 m²
WC 2,24 m²
Abstellraum 1,55 m²
Loggia 8,12 m² = anteilig zur WFL. = 3,12 m²
Kellerraum 5,00 m²
Nutzfläche gesamt: 9,00 m²
Energieausweis
Heizung/Energie
Heizungsart: Fernwärme
Energieausweistyp: Verbrauchsausweis gültig bis 01/2029
Energiewert: 96,9 kWh/(m*a)
Energieeffizienzklasse: „C“
Kaufpreis & Courtage
Dieses Objekt wird exklusiv von PANTÉ Immobilien angeboten. Alle Angaben sind ohne Gewähr und basieren ausschließlich auf Informationen, die uns von unserem Auftraggeber bzw. Eigentümer übermittelt wurden. Wir übernehmen keine Gewähr für die Vollständigkeit, Richtigkeit und Aktualität dieser Angaben. Qualifizierte Wertermittlung wurde durchgeführt.
Kaufpreis: 244.000 Euro
Die Käuferprovision in Höhe von 3,57% inkl. MwSt. des Kaufpreises ist verdient und fällig nach notarieller Beurkundung des Kaufvertrages. Ein provisionspflichtiger Maklervertrag mit dem Verkäufer in gleicher Höhe wurde abgeschlossen.
Gerne stehen wir Ihnen für weitere Informationen sowie der Vereinbarung zu einem individuellen Besichtigungstermin zur Verfügung. Sie erreichen uns Montag bis Freitag von 09:00 Uhr bis 18:00 Uhr, Samstag und Sonntag nach Vereinbarung.
Sie haben kein passendes Objekt gefunden?
Mit Ihrem persönlichen Suchauftrag schneller zu Ihrer Wunschimmobilie.
Kontakt
PANTÉ Immobilien
Waldpforte 15
68305 Mannheim-Gartenstadt
T +49 621 319611-35
F +49 621 319611-36
M +49 1525 6929492
info@pante-immobilien.de
www.pante-immobilien.de
@panteimmobilien







































